2701 20th Street S, ST PETERSBURG, FL

$1,799,900

Previous Next

3.30

Acres

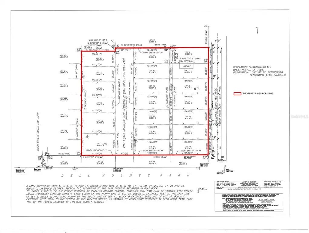
About 2701 20th Street S

ENTIRE City block that will have up to 26 brand new contiguous homes as a community!! 6 of those homes/lots are already under construction on the far West side and not for sale. The balance of the property that is for sale is the already platted 20 lots and zoned for single family homes (Blk C, Lot 6 is included). Rare opportunity to have this size of a cluster in the City for all new construction. Interior road/driveway, water and sewer lines need to be added for services and access to the middle lots.

Features of 2701 20th Street S

MLS® # U8149214
Price $1,799,900
Acres 3.30
Type Land
Sub-Type Land
Status Active

Community Information

Address 2701 20th Street S
Area St Pete
Subdivision LAKEWOOD ESTATES SEC H
City ST PETERSBURG
County Pinellas
State FL
Zip Code 33712

Amenities

Is Waterfront No
Has Pool No

Interior

Fireplace No

Exterior

Lot Description Cleared, Cul-De-Sac, Flood Plain, City Lot, Near Public Transit

Additional Information

Date Listed January 18th, 2022
Days on Market 1077
Foreclosure No
Short Sale No
RE / Bank Owned No

Listing Details

OfficeGHD REALTY OF PINELLAS INC

Listing Map

Request a Showing

Provide a valid email address.
When would you like to view this property?